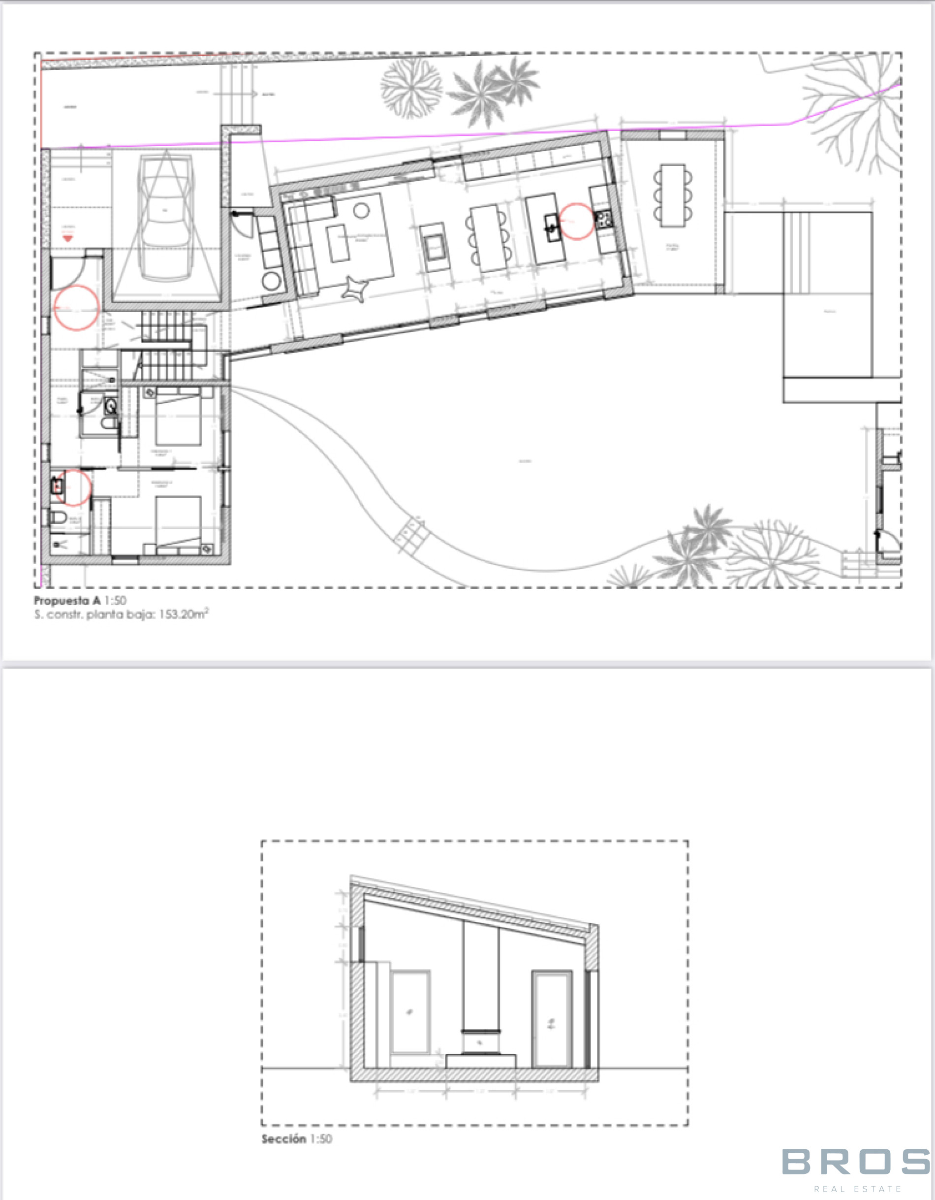
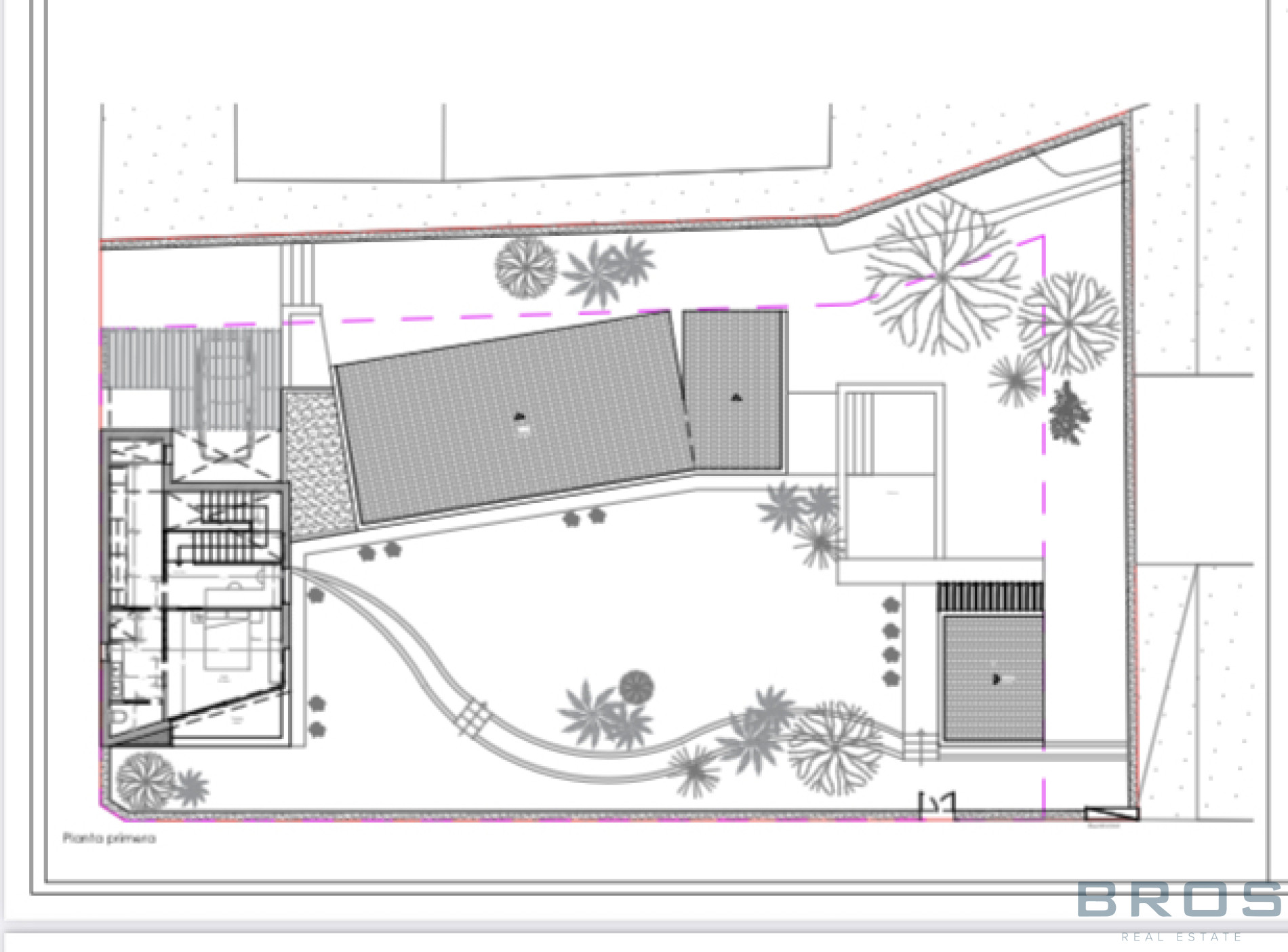
Ubicado en el tranquilo y pintoresco municipio de Ultramort, este magnífico terreno de 721 m² ofrece la oportunidad de construir la casa de tus sueños con vistas excepcionales a los Pirineos. A solo 10 minutos de las playas de Escala, Estartit y Pals/Begur, esta parcela cuenta con un proyecto aprobado para una casa unifamiliar de estilo minimalista neo-rústico de 200 m², lo que garantiza una integración perfecta con el entorno natural. Además, ya dispone de la licencia de obras, por lo que podrás empezar a construir de inmediato. Su ubicación en una calle residencial asegura tranquilidad y privacidad, mientras que la parcela completamente plana facilita el proceso de construcción.
Esta parcela es una joya única en la Costa Brava, ideal para aquellos que buscan construir una casa en un entorno natural privilegiado, sin renunciar a la cercanía de las mejores playas y ciudades de la región.